Licht, Raum & Panorama - Stilvolles Anwesen mit vielseitigen Nutzungsmöglichkeiten
Objektart
Adresse
Objektdaten
°Exklusive Wohnidylle in sonniger Südhanglage - unverbaubarer Weitblick und hochwertige Bauqualität°
Dieses außergewöhnliche Einfamilienhaus mit Einliegerwohnung liegt auf einem ca. 1.063 m² großen Grundstück in traumhafter Südhanglage und bietet einen unverbaubaren Blick über die umliegende Landschaft. Das 1999 in hochwertiger Liapor-Massivbauweise errichtete Anwesen wurde ausschließlich durch regionale Fachbetriebe realisiert und überzeugt durch solide Bauqualität, zeitlose Architektur und ein durchdachtes Wohnkonzept. Mit einer großzügigen Wohnfläche von rund 289 m² eignet sich das Haus sowohl als Ein- wie auch als Zweifamilienhaus und eröffnet vielfältige Nutzungsmöglichkeiten.
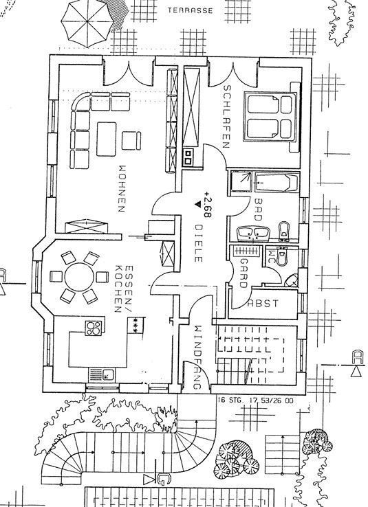
Bereits beim Betreten des Erdgeschosses empfängt ein großzügiger, heller Flur, von dem aus alle Räumen bequem erreichbar sind. Die Wohnküche ist mit einer maßgefertigten Vollholzküche und hochwertigen Siemens-Geräten ausgestattet. Eine Fußbodenheizung sorgt im Küchen- und Essbereich für angenehme Wärme, während die massive Holzdecke mit integrierten Spots dem Raum eine warme, behagliche Atmosphäre verleiht.
Das angrenzende Wohnzimmer beeindruckt mit großen Fensterflächen, die viel Tageslicht hereinlassen und den Blick in die Natur öffnen. Ein dekorativer Grundofen, der komfortabel vom Flur aus befeuert wird, schafft zusätzliche Gemütlichkeit. Von hier aus gelangt man direkt auf die Terrasse, die den Wohnraum harmonisch nach draußen erweitert. Auch das Schlafzimmer bietet einen Terrassenzugang und verbindet Innen- und Außenbereich auf besonders angenehme Weise. Ein Badezimmer mit Fenster, Dusche und Badewanne, ein separates Gäste-WC mit Pissoir sowie ein Abstellraum mit Fenster komplettieren diese Ebene. Hochwertige Echtholzböden und Fliesen unterstreichen den gepflegten Charakter des Erdgeschosses.
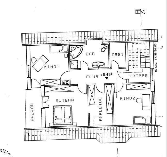
Im Obergeschoss setzt sich die hochwertige Ausstattung fort: Echtholzböden, Kork und Fliesen schaffen eine angenehme Wohnatmosphäre. Sowohl vom Schlafzimmer als auch vom Wohnzimmer aus gelangt man auf den Balkon, von dem sich ein beeindruckender Weitblick über die Landschaft eröffnet. Das Wohnzimmer verfügt zudem über einen gemütlichen Holzofen, der an kühlen Tagen für eine besonders behagliche Stimmung sorgt. Das großzügige Badezimmer ist mit einer Eckdusche, einer Badewanne und einem Waschmaschinenanschluss ausgestattet und bietet damit hohen Komfort für den Alltag.
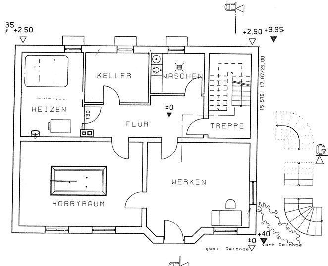
Das Untergeschoss zeigt eindrucksvoll die Flexibilität dieses Hauses. Es ist hell, freundlich und so vorbereitet, dass es problemlos als eigenständige Wohneinheit genutzt werden kann. Zwei lichtdurchflutete Zimmer bieten vielfältige Nutzungsmöglichkeiten - ob als Wohnräume, Büro oder Hobbybereich. Ergänzt wird das Geschoss durch einen Technikraum sowie eine geräumige Waschküche.
Das gesamte Haus ist mit Marmorfensterbänken und hochwertigen Kunststofffenstern der Firma Gesell ausgestattet. An allen bodentiefen Fenstern wurden elektrische Rollläden installiert. Das helle Treppenhaus mit großen Fensterflächen, Hochglanzfliesen und einem eleganten Edelstahlgeländer unterstreicht den modernen und gepflegten Charakter des Hauses. Die massiven Innentüren wurden individuell vom Schreiner angefertigt und fügen sich harmonisch in das hochwertige Gesamtbild ein.
Aktuell ist das Objekt vermietet.
Die Immobilie befindet sich im westlichen Teil des Landkreises Neustadt an der Aisch-Bad Windsheim, eingebettet in die sanft hügelige Landschaft des südlichen Steigerwaldes. Die Region ist geprägt von weitläufigen Wäldern, Weinbergen und einer naturnahen Kulturlandschaft, die zu den schönsten Erholungsgebieten Frankens zählt. Scheinfeld selbst ist eine charmante Kleinstadt mit gewachsenem Ortskern, guter Infrastruktur und einem lebendigen Gemeinschaftsleben. Einkaufsmöglichkeiten, Ärzte, Apotheken, Schulen und gastronomische Angebote sind im Ort vorhanden und bequem erreichbar.
Durch die zentrale Lage zwischen Würzburg, Nürnberg und Bamberg bietet Scheinfeld eine hervorragende Anbindung an die umliegenden Städte. Die Bundesstraßen B8 und B286 sowie die Nähe zur A3 ermöglichen eine gute Erreichbarkeit sowohl für Pendler als auch für Besucher. Gleichzeitig bleibt die Region angenehm ruhig und naturnah - ideal für Menschen, die Wert auf Lebensqualität, Naturverbundenheit und dennoch gute Erreichbarkeit legen.
Die Immobilie liegt in einem ruhigen, gepflegten Wohngebiet am südlichen Ortsrand von Scheinfeld. Die Hanglage eröffnet einen beeindruckenden, unverbaubaren Blick über die umliegende Landschaft und sorgt für eine außergewöhnlich sonnige Ausrichtung. Die Nachbarschaft ist geprägt von Einfamilienhäusern, großzügigen Grundstücken und einem harmonischen, familienfreundlichen Umfeld.
Dank der Randlage genießt man hier ein hohes Maß an Privatsphäre und Ruhe, ohne auf die Nähe zum Ortszentrum verzichten zu müssen. Einkaufsmöglichkeiten, Schulen, Kindergärten und Freizeiteinrichtungen sind in wenigen Minuten erreichbar. Spazier- und Wanderwege beginnen praktisch vor der Haustür und führen direkt in die Natur des Steigerwaldes. Die Lage verbindet damit ideal naturnahes Wohnen mit kurzen Wegen und einer sehr angenehmen Wohnatmosphäre.
Ich bin damit einverstanden, dass mir Karten von Google angezeigt werden. Es gelten die Datenschutzbedingungen von Google (https://policies.google.com/privacy).
Ich bin einverstanden